Building a Better Future Capital Campaign

We did it!

Thank you to every donor, big and small! Your support has ensured that tomorrow’s needy animals will have a safe welcoming place to get better before finding their new homes.

The Building of a Better Future Capital Campaign concluded in 2024, and we celebrated the opening of the newly renovated and expanded facility in August of 2024.

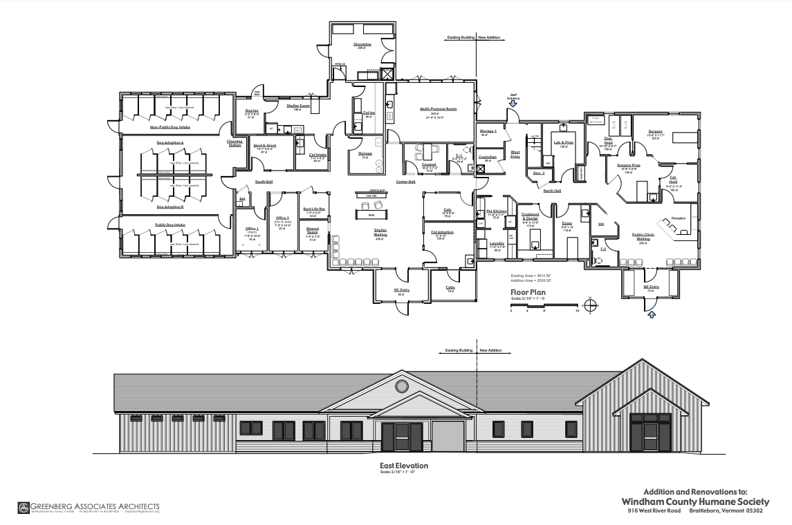
New Building Highlights

  • Improved plumbing and drainage systems, flooring, sanitation, acoustics, and lighting to promote health and wellness for the shelter guests by addressing environmental conditions.

  • Air filtration and handling system that meets animal welfare standards of 10-15 air exchanges per hour.

  • A specialized chemical pump system in the dog kennels to ensure the kennels are sanitized, reducing disease transmission.

  • Modern kennel layout designed to reduce reactive barking by limiting people from walking through as a pathway to other places. Materials that absorb sound. More natural light.

  • Separate dog and cat areas for intake, sick isolation, proper surgery patients’ rooms to prevent disease transmission, and allow time for animals to de-stress after arriving and while recovering.

  • Centralized, dedicated, and improved animal laundry and kitchen space to ensure all animals always have clean bedding and pet meals and enrichment treats can be stored. New kitchenette for staff and volunteers so their food and medications aren’t co-mingled with the pets’.

  • A Meet and Greet Room for people to get to know a pet before adoption.

  • Dignified and private space for people to discuss pet retention options with pet owners, whether through veterinary assistance, spay/neuter support, or access to the Food Pantry before surrendering the pet to the shelter.

  • Capacity for expanding medical care with specialized equipment to allow medical services (blood tests, dental extractions/cleanings) to be performed in-house.

  • Separate Shelter Medical Suite allowing the veterinary team to provide immediate examinations on new animals and monitor and treat sick animals without having to move animals among rooms throughout the facility and exposing them to other animals.

  • Updated Multipurpose Community Room to accommodate various programs such as humane education visits, volunteer training, and community events. Free Roaming

  • Cat room for longer-stay or wide-body cats that need more space to explore to remain mentally healthy.

  • Catio – three-season space for cats to get out of their cages and enjoy some scents and sounds.

  • Updated fire & security alarms, phone and internet services, and outside lighting.

  • Re-configured dog play yard for multiple dogs.


Click image to enlarge

Give to the Building Project

We are still accepting donations and have select naming opportunities available (see below).

Pledge now online or download a pledge form and if your pledge is over $3,000 it may be paid over two to three years.

WCHS is a private, non-profit organization (501) (C3)

We are not affiliated with the Humane Society of the United States and receive no funding from national groups or the state. We are self-funded and sustained by gifts from people, local businesses and foundations.

Naming Opportunities

Change the world for tomorrow’s animals in your name or honor of a beloved friend, family member, or company. Each Naming Opportunity comes with a dedicated sign placed inside or outside of a room.

Naming Opportunities start at $5,000. Limited Supply.

Contact Maya Richmond, Executive Director at maya@windhamcountyhumane.org to find out which naming opportunities are available.